Kok Makelaars

Adres Hollandsch Diep 57
2904 EP Capelle aan den IJssel
E-mail info@kok-makelaars.nl Telefoon 010 450 67 77 Website www.kok-makelaars.nl

Berliozstraat 14,

 

Capelle aan den IJssel

€ 875.000,- k.k.

Berliozstraat 14, Capelle aan den IJssel

Kenmerken

Type woonhuis
2-onder-1-kapwoning
Bouwjaar
1993
Woonoppervlakte
165 m²
Kamers
5
Slaapkamers
4
Perceeloppervlakte
308 m²
Inhoud
619 m³
Aanvaarding
in overleg

Omschrijving

Topwoning voor het hele gezin in ’s-Gravenland!

Deze instap-klare en royale 2-ONDER-1-KAPWONING heeft alles mee en is je aandacht meer dan waard!

Een gezellige en opvallend ruime woonkamer voorzien van houtkachel, vier goed formaat slaapkamers, twee moderne badkamers, een royale en zonnige achtertuin en parkeergelegenheid op eigen terrein.

Op onderhoud en afwerking is niet bespaard, en met energielabel A en 17(!) zonnepanelen is deze woning klaar voor de toekomst!

Zie onderstaande hoofdkenmerken met nadere omschrijving en de uitgebreide fotoreportage. Zelf sfeer proeven in de woning? Bel met Kok Makelaars voor een bezichtiging!

Hoofdkenmerken:
- Riante en tuingerichte woonkamer met houtkachel
- Nette en complete keuken aan de voorzijde
- 2(!) strakke badkamer met douches en ligbad
- 4 (optioneel 5) ruime slaapkamers, allen met airco
- Fraai aangelegde tuinen
- Parkeergelegenheid op eigen terrein
- Garage/berging
- Energielabel A
- Woonoppervlakte ca. 165 m²
- Perceeloppervlakte ca. 308 m²
- Eigen grond

Gelegen in het kindvriendelijke ’s-Gravenland, met vrijwel alle voorzieningen op korte afstand: winkelcentrum Puccinipassage, metro- en busstation Capelsebrug, scholen, kinderdagverblijven, gezondheidszorg en uitvalswegen A16/A20.

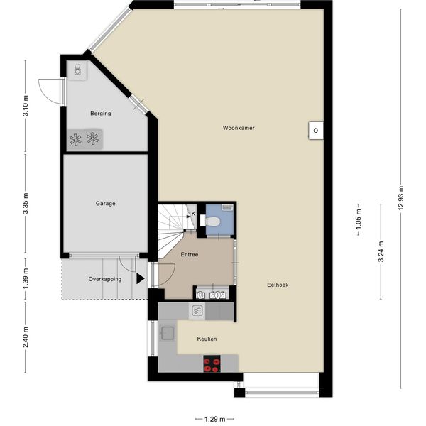
INDELING (voor de afmetingen, zie de plattegrondtekeningen)

Begane grond:
De begane grond is voorzien van een fraaie Epoxy gietvloer met vloerverwarming.

Entree/hal, met garderobe en toegang tot de woonkamer, keuken, toilet, meterkast en trapopgang naar de eerste verdieping.

Woonkamer, een royale en tuingerichte woonkamer met veel glas! De sfeervolle houtkachel en de vernieuwde brede kunststof schuifpui richting de achtertuin maken het plaatje compleet. Vanuit de woonkamer is er toegang tot de inpandige berging met wasmachine- en drogeraansluiting, diverse kasten en loopdeur naar de zij-tuin. Voornoemde inpandige berging is oorspronkelijk het achterste gedeelte van de garage.

Keuken, een verzorgde en complete keuken, gelegen aan de voorzijde, voorzien van een U-vormig keukenblok. De keuken is uitgerust met diverse apparatuur: een 5-pits gasfornuis met design-afzuigkap, koel-vriescombinatie, oven, combimagnetron, vaatwasser en veel kastruimte.

Toilet, geheel betegeld, voorzien van een hangend closet, fonteintje en mechanische ventilatie.

Eerste verdieping:
Overloop, welke eveneens voorzien is van de epoxy vloerafwerking, biedt toegang tot twee ruime slaapkamers, badkamer, separaat toilet en trapopgang naar de tweede verdieping.

Slaapkamer 1, gelegen aan de achterzijde, betreft een zeer ruime slaapkamer (voorheen 2 kamers). De slaapkamer is voorzien van houten vloerdelen, airconditioning, rolluiken en een grote kastenwand.
Slaapkamer 2, eveneens een ruime kamer, is gelegen aan de voorzijde en voorzien van een laminaatvloer. Daarnaast bevat ook deze ruimte rolluiken, airconditioning en een grote kast met schuifdeuren.

Badkamer, een moderne en ruime badkamer. Geheel betegeld en voorzien van een inloopdouche met inbouwkraan, rainshower en handdouche, een groot ligbad met thermostaatkraan en handdouche, brede wastafel met twee mengkranen, onderladen en spiegelkast, een badkamerradiator, te openen raam en mechanische ventilatie. Kortom: helemaal compleet!

Toilet, eveneens modern en geheel betegeld, voorzien van een hangend closet.

Tweede verdieping:
Overloop, voorzien van bergruimte en toegang tot twee slaapkamers en een tweede badkamer.

Slaapkamer 3, gelegen aan de achterzijde, voorzien van een dakkapel, laminaat vloerafwerking, airconditioning en bergruimte achter het knieschot.
Slaapkamer 4, een ruime kamer, gelegen aan de voorzijde, eveneens voorzien van een dakkapel, laminaat vloerafwerking, airconditioning en een elektrisch rolluik.

Badkamer 2, geheel betegeld en voorzien van een inloopdouche met thermostaatkraan, wastafel met onderladen en spiegel, elektrisch rolluik en mechanische ventilatie. Vanuit de badkamer is er toegang tot een kast met schuifdeuren, waar zich de opstelling van de cv-ketel en mechanische ventilatie-unit bevindt.

Tuinen:
Achtertuin, een riante achtertuin, gelegen op het oosten. De achtertuin is voorzien van sierbestrating, groen en een gazon, en bevat verder een houten berging, pergola met houten vlonder, buitenkraan, elektra en elektrische zonwering. Vanuit de achtertuin is er toegang tot de zij-tuin.

Zij-tuin, voorzien van sierbestrating en een haardhouthok.

Voortuin, gelegen op het westen, voorzien van sierbestrating en biedt parkeergelegenheid voor 2 auto’s op eigen terrein. Verder is de voortuin voorzien van splitgrind, groene borders, een buitenkraan en biedt deze toegang tot de zij-tuin en de garage/berging.

Garage/berging, voorzien van een stalen kantel- en loopdeur naar de voortuin en de omvormer van de PV-zonnepanelen.

Bijzonderheden:
- Cv-ketel Intergas Xtreme (2020)
- Begane grond voorzien van vloerverwarming
- Mitsubishi Heavy Industries airconditioning
- Vernieuwde elektra groepenkast
- Houten en kunststof kozijnen
- Dubbele en HR++ beglazing
- 17 PV-zonnepanelen (2018), ca. 350 Wp per stuk
- Volledig geïsoleerd vanuit bouwperiode
- Energielabel A
- Bouwjaar ca. 1993

Oplevering: in overleg met verkoper.

Bij het samenstellen van deze verkoopinformatie en (plattegrond)tekeningen zijn we nauwkeurig te werk gegaan, aan onjuistheden en/of onvolkomenheden kunt u echter geen rechten ontlenen. Daarnaast aanvaardt de makelaar of zijn opdrachtgever geen aansprakelijkheid voor de in de verkoopinformatie en (plattegrond)tekeningen verstrekte informatie.

Foto's

Berliozstraat 14, Capelle aan den IJssel
Berliozstraat 14, Capelle aan den IJssel
Berliozstraat 14, Capelle aan den IJssel
Berliozstraat 14, Capelle aan den IJssel
Berliozstraat 14, Capelle aan den IJssel
Berliozstraat 14, Capelle aan den IJssel
Berliozstraat 14, Capelle aan den IJssel
Berliozstraat 14, Capelle aan den IJssel
Berliozstraat 14, Capelle aan den IJssel
Berliozstraat 14, Capelle aan den IJssel
Berliozstraat 14, Capelle aan den IJssel
Berliozstraat 14, Capelle aan den IJssel
Berliozstraat 14, Capelle aan den IJssel
Berliozstraat 14, Capelle aan den IJssel
Berliozstraat 14, Capelle aan den IJssel
Berliozstraat 14, Capelle aan den IJssel
Berliozstraat 14, Capelle aan den IJssel
Berliozstraat 14, Capelle aan den IJssel
Berliozstraat 14, Capelle aan den IJssel
Berliozstraat 14, Capelle aan den IJssel
Berliozstraat 14, Capelle aan den IJssel
Berliozstraat 14, Capelle aan den IJssel
Berliozstraat 14, Capelle aan den IJssel
Berliozstraat 14, Capelle aan den IJssel
Berliozstraat 14, Capelle aan den IJssel
Berliozstraat 14, Capelle aan den IJssel
Berliozstraat 14, Capelle aan den IJssel
Berliozstraat 14, Capelle aan den IJssel
Berliozstraat 14, Capelle aan den IJssel
Berliozstraat 14, Capelle aan den IJssel
Berliozstraat 14, Capelle aan den IJssel
Berliozstraat 14, Capelle aan den IJssel
Berliozstraat 14, Capelle aan den IJssel
Berliozstraat 14, Capelle aan den IJssel
Berliozstraat 14, Capelle aan den IJssel
Berliozstraat 14, Capelle aan den IJssel
Berliozstraat 14, Capelle aan den IJssel
Berliozstraat 14, Capelle aan den IJssel
Berliozstraat 14, Capelle aan den IJssel