IJsselzoom 134, Capelle aan den IJssel
verkocht
Details
Overdracht
- Status
- verkocht
- Aanvaarding
- in overleg
Bouw
- Soort woning
- appartement
- Soort appartement
- portiekflat
- Aantal woonlagen
- 1
- Woonlaag
- 1
- Kwaliteit
- normaal
- Bouwvorm
- bestaande bouw
- Bouwjaar
- 1995
- Bouwperiode
- 1991-2000
- Open portiek
- nee
- Onderhoud binnen
- goed
- Onderhoud buiten
- goed
- Dak
- plat dak
- Voorzieningen
- mechanische ventilatie, alarminstallatie, rolluiken, buitenzonwering, lift en schuifpui
Energie
- Energielabel
- A
- Verwarming
- c.v.-ketel en vloerverwarming gedeeltelijk
- Warm water
- c.v.-ketel
- C.V.-ketel
- gas gestookte combi-ketel uit 2025 van Intergas HRE, eigendom
Oppervlakten en inhoud
- Woonoppervlakte
- 138 m²
- Inhoud
- 456 m³
- Bergruimte oppervlakte
- 35 m²
Indeling
- Aantal kamers
- 3
- Aantal slaapkamers
- 2
Buitenruimte
- Ligging
- vrij uitzicht en aan vaarwater
Bergruimte
- Garage
- parkeerplaats
- Schuur/berging
- box
Omschrijving
Super fraaie locatie op de IJsselzoom.
Dit royale APPARTEMENT met groot en zonnig terras met waanzinnig uitzicht over de rivier, heeft werkelijk alles mee!
En wát een ruimte! Een grote woonkamer, twee slaapkamers én twee badkamers. De eigen parkeerplaats (met optioneel een tweede parkeerplaats) in de ondergelegen parkeergarage maken het plaatje helemaal compleet.
Door de ligging op de eerste verdieping is het appartement voorzien van een extra groot terras, puur genieten dit!
Wie gaat hier komende zomer nog van het zonnetje genieten?!
Zie onderstaande hoofdkenmerken met nadere omschrijving en de uitgebreide fotoreportage. Zelf sfeer proeven in de woning? Bel met Kok Makelaars voor ee... lees
meer
Super fraaie locatie op de IJsselzoom.
Dit royale APPARTEMENT met groot en zonnig terras met waanzinnig uitzicht over de rivier, heeft werkelijk alles mee!
En wát een ruimte! Een grote woonkamer, twee slaapkamers én twee badkamers. De eigen parkeerplaats (met optioneel een tweede parkeerplaats) in de ondergelegen parkeergarage maken het plaatje helemaal compleet.
Door de ligging op de eerste verdieping is het appartement voorzien van een extra groot terras, puur genieten dit!
Wie gaat hier komende zomer nog van het zonnetje genieten?!
Zie onderstaande hoofdkenmerken met nadere omschrijving en de uitgebreide fotoreportage. Zelf sfeer proeven in de woning? Bel met Kok Makelaars voor een bezichtiging!
Hoofdkenmerken:
- Ruime woonkamer
- Moderne en complete keuken
- 2 grote slaapkamers
- 2 badkamers
- Royaal terras op het zuiden
- Parkeerplaats in ondergelegen parkeergarage
- Optioneel tweede parkeerplaats in ondergelegen parkeergarage
- Privé-berging in de onderbouw
- Woonoppervlakte ca. 138 m²
Gelegen op een prachtige locatie direct naast de Hollandsche IJssel en het groene Slotpark. Veel voorzieningen zijn hier op korte afstand: winkelstraat Slotplein, gezondheidszorg, apotheek, openbaar vervoer, etc.
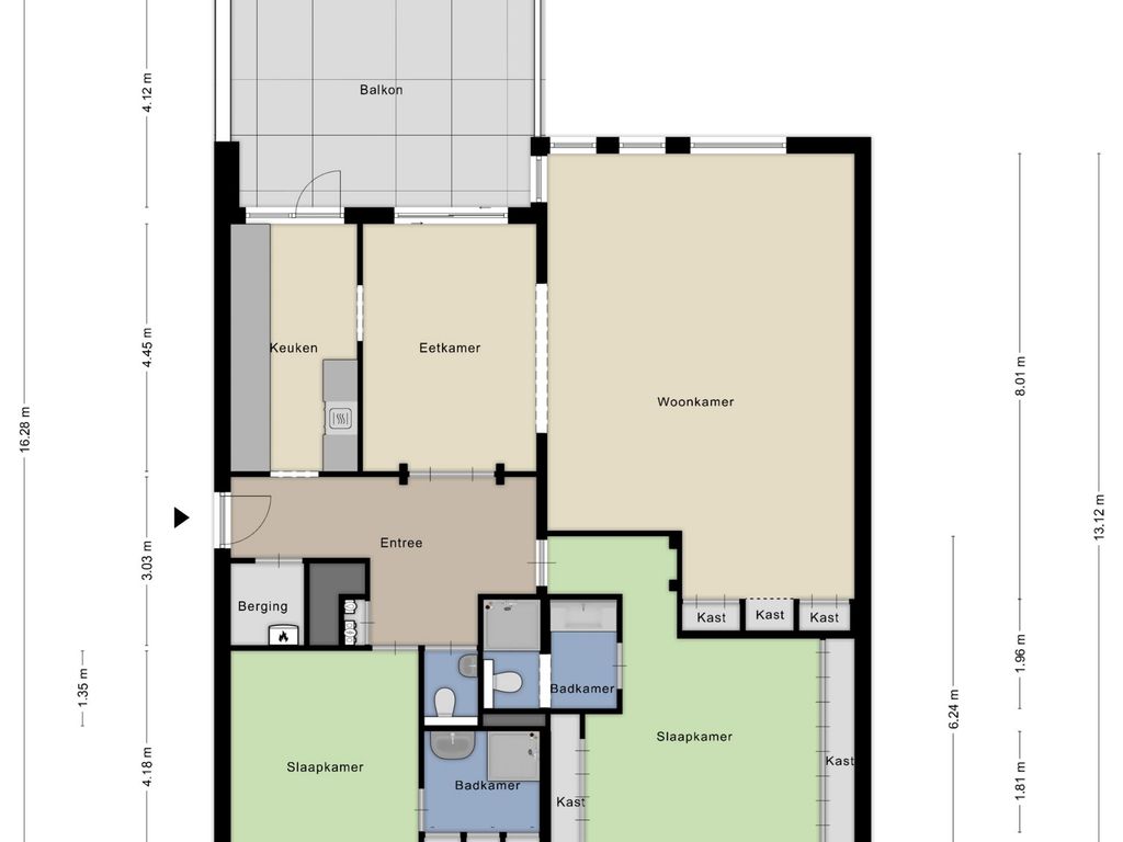
INDELING (voor de afmetingen, zie de plattegrondtekeningen)
Begane grond:
Afgesloten entree met brievenbussen- en bellentableau (met videofoon) en toegang tot het trappenhuis met liftinstallatie, parkeergarage en privé bergingen.
Eerste verdieping:
Het appartement is afgewerkt met een hoogste kwaliteit natuurstenen vloer in combinatie met vloerverwarming.
Entree/hal, met toegang tot de keuken, woonkamer, 2 slaapkamers, toilet, meterkast en garderobekast met tevens de opstelling van de C.V.-ketel.
Woonkamer, een royale woonkamer met werkelijk prachtig(!) uitzicht over de Hollandsche IJssel. Voorzien van diverse maatwerk kasten en een schuifpui met toegang tot het terras. Verder is de woonkamer voorzien van elektrische zonwering.
Keuken, moderne keuken in een dubbelrechte opstelling met een fraai werkblad. De keuken is rijk uitgerust met inbouwapparatuur: een inductieplaat met afzuigkap, vaatwasser, koelkast (2023), vriezer, stoomoven en heteluchtoven. De keukenapparatuur is van het merk ‘Miele’ (m.u.v. de Liebherr koelkast). Tot slot biedt de keuken tevens toegang tot het terras.
Terras, een royaal en zonnig terras, gesitueerd op het zuiden en met een prachtig uitzicht over de rivier de Hollandsche IJssel en IJsselkering. De voorbijvarende boten en schepen vervelen werkelijk nooit! Het terras is verder voorzien van een kunststof vlonderplanken, zit(opberg-)bank, buitenkraan en zonwering.
Slaapkamer 1, een royale kamer gelegen aan de achterzijde met fraai uitzicht over het ‘Slotpark’. Verder is deze kamer voorzien van een groot aanbod aan maatwerk kledingkasten en toegang tot badkamer 1.
Badkamer 1, geheel betegelde ruimte met een douchecabine voorzien van thermostaatkraan, wastafelmeubel met een onderkast en een spiegel met verlichting, een tweede toilet (hangend closet) met elektrische spoelunit en een elektrische radiator.
Slaapkamer 2, een ruime slaapkamer aan de achterzijde met toegang tot badkamer 2 en ook hier uitzicht op het Slotpark.
Badkamer 2, ook geheel betegeld, voorzien van een douchecabine met inbouwkraan, wastafelmeubel met een onderkast en spiegel met verlichting. Verder is deze ruimte voorzien van de wasmachine- en drogeraansluiting welke zijn weggewerkt achter maatwerk schuifdeuren.
Toilet, geheel betegelde ruimte, met een hangend closet en een fonteintje.
Parkeerplaats (-en)
Bij de vraagprijs van de woning is 1 parkeerplaats inbegrepen, gesitueerd in de ondergelegen parkeergarage.
Optioneel wordt er een tweede parkeerplaats aangeboden, gesitueerd in hetzelfde gedeelte van de ondergelegen parkeergarage. Vraagprijs tweede Parkeerplaats: € 35.000,- Kosten Koper (exclusief maandelijkse VvE bijdrage, ca. € 32,- per maand).
Bijzonderheden:
- C.V.-ketel Intergas HRE (2025)
- Houten kozijnen met dubbele beglazing
- Energielabel A
- Alarminstallatie aanwezig
- Elektrische zonwering en rolluiken
- Actieve VvE, bijdrage ca. € 325 per maand (woning met 1 parkeerplaats)
- Bouwjaar 1995
- In de Koopovereenkomst zal de ‘niet-zelfbewoningsclausule’ worden opgenomen
- Er zijn geen Vragenlijsten of Lijst van Zaken beschikbaar
Oplevering: in nader overleg met de verkoper, op korte termijn mogelijk.
Bij het samenstellen van deze verkoopinformatie en (plattegrond-) tekeningen zijn we nauwkeurig te werk gegaan, aan onjuistheden en/of onvolkomenheden kunt u echter geen rechten ontlenen. Daarnaast aanvaardt de makelaar of zijn opdrachtgever geen aansprakelijkheid voor de in de verkoopinformatie en (plattegrond)tekeningen verstrekte informatie.
