Merelhoven 229, Capelle aan den IJssel
verkocht
Details
Overdracht
- Status
- verkocht
- Aanvaarding
- in overleg
Bouw
- Soort woning
- woonhuis
- Soort woonhuis
- eengezinswoning
- Type woonhuis
- tussenwoning
- Aantal woonlagen
- 3
- Kwaliteit
- normaal
- Bouwvorm
- bestaande bouw
- Bouwjaar
- 1967
- Bouwperiode
- 1960-1970
- Onderhoud binnen
- goed
- Onderhoud buiten
- goed
- Dak
- zadeldak
- Voorzieningen
- buitenzonwering en dakraam
Energie
- Energielabel
- F
- Verwarming
- c.v.-ketel
- Warm water
- c.v.-ketel
- C.V.-ketel
- gas gestookte cv-ketel uit 2009 van Bosch, eigendom
Oppervlakten en inhoud
- Woonoppervlakte
- 127 m²
- Perceeloppervlakte
- 189 m²
- Inhoud
- 449 m³
Indeling
- Aantal kamers
- 5
- Aantal slaapkamers
- 4
Buitenruimte
- Ligging
- aan rustige weg, in centrum en in woonwijk
- Tuin
- achtertuin met een oppervlakte van 77 m² en is gelegen op het zuidwesten
Bergruimte
- Schuur/berging
- inpandig
Omschrijving
Een leuke EENGEZINSWONING met een heerlijke zonnige en diepe achtertuin op het zuid/westen!
Gelegen op een kindvriendelijk woonerf op een centrale locatie nabij het centrum van Capelle!
De woning bevat 4 slaapkamers op de eerste verdieping, een grote zolderkamer en parkeergelegenheid op eigen terrein. Kortom, perfect voor (aanstaande) gezinnen!
Zie onderstaande hoofdkenmerken met nadere omschrijving en de uitgebreide fotoreportage. Zelf sfeer proeven in de woning? Bel met Kok Makelaars voor een bezichtiging!
Hoofdkenmerken:
- Lichte tuingerichte woonkamer
- Keuken aan voorzijde met uitzicht op woonerf
- Badkamer met douchecabine
- 4 slaapkamers eerste verdieping
- Grote zolderkamer
- R... lees
meer
Een leuke EENGEZINSWONING met een heerlijke zonnige en diepe achtertuin op het zuid/westen!
Gelegen op een kindvriendelijk woonerf op een centrale locatie nabij het centrum van Capelle!
De woning bevat 4 slaapkamers op de eerste verdieping, een grote zolderkamer en parkeergelegenheid op eigen terrein. Kortom, perfect voor (aanstaande) gezinnen!
Zie onderstaande hoofdkenmerken met nadere omschrijving en de uitgebreide fotoreportage. Zelf sfeer proeven in de woning? Bel met Kok Makelaars voor een bezichtiging!
Hoofdkenmerken:
- Lichte tuingerichte woonkamer
- Keuken aan voorzijde met uitzicht op woonerf
- Badkamer met douchecabine
- 4 slaapkamers eerste verdieping
- Grote zolderkamer
- Ruime berging voorzijde (voorheen garage)
- Parkeergelegenheid op eigen terrein
- Zonnige achtertuin op het zuidwesten
- Woonoppervlakte ca. 127 m²
- Perceeloppervlakte ca. 189 m²
- Eigen grond
Gelegen op korte afstand van veel voorzieningen: winkelcentrum ‘De Koperwiek’, metrostation ‘Slotlaan’, scholen, kinderdagopvang, gezondheidszorg, diverse horeca- en amusementsgelegenheden en de uitvalswegen richting Rotterdam en Utrecht (A16/A20).
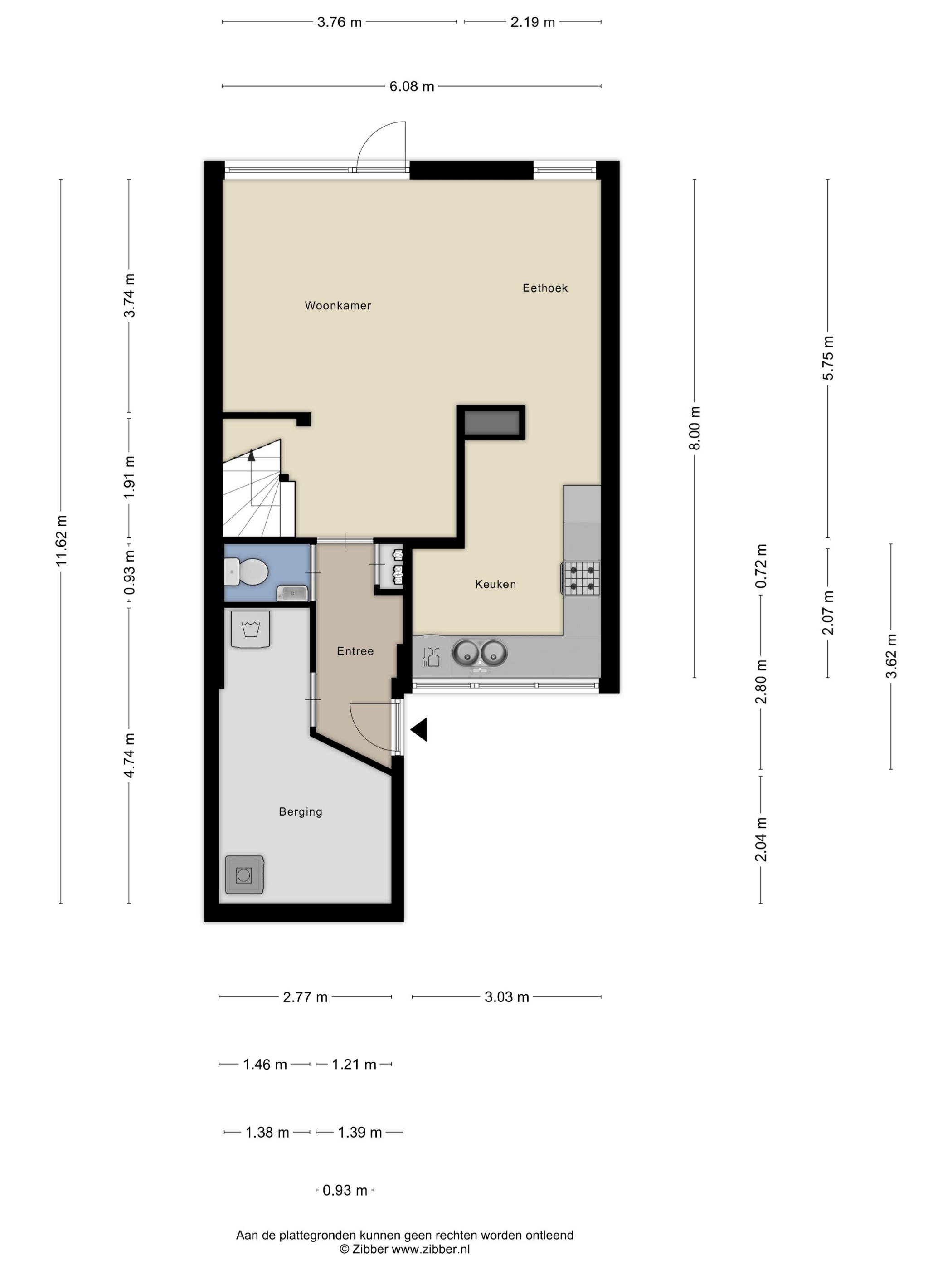
INDELING (voor de afmetingen, zie de plattegrondtekeningen)
Begane grond:
Entree/hal, voorzien van plavuizen vloerafwerking, met toegang tot de woonkamer, toilet, berging en meterkast.
Woonkamer, een lichte en tuingerichte woonkamer voorzien van laminaat vloerafwerking, met toegang tot de keuken, achtertuin en gestoffeerde trapopgang naar de eerste verdieping.
Keuken, een ruime keuken gelegen aan de voorzijde met uitzicht op het woonerf, voorzien van een keukenblok in L-vormige opstelling, gaskookplaat, afzuigkap, oven, koel/vriescombinatie, vaatwasser en een dubbele spoelbak.
Toilet, geheel betegeld, voorzien van een staand closet en een fonteintje.
Berging, een ruime berging (voorheen de garage) aan de voorzijde met een wasmachineaansluiting.
Eerste verdieping:
Overloop, voorzien van tapijt vloerafwerking, met toegang tot 4 slaapkamers, badkamer en gestoffeerde trapopgang naar de tweede verdieping.
Slaapkamer 1, een royale kamer aan de achterzijde, voorzien van een grote kast met schuif(spiegel)deuren, elektrische zonwering (screen) en zeil op de vloer.
Slaapkamer 2, gelegen aan de voorzijde, voorzien van een vaste kast, kunststof kozijn met draai/kantelramen en laminaat vloerafwerking.
Slaapkamer 3, gelegen aan de achterzijde, voorzien van 2 vaste kasten, laminaat op de vloer en elektrische zonwering (screen).
Slaapkamer 4, gelegen aan de voorzijde, voorzien van een kunststof kozijn en zeil op de vloer.
Badkamer, vergroot en geheel betegeld, voorzien van een douchecabine met thermostaatkraan, wastafel met spiegel, een tweede toilet (hangend closet), badkamerradiator en elektrische afzuiging.
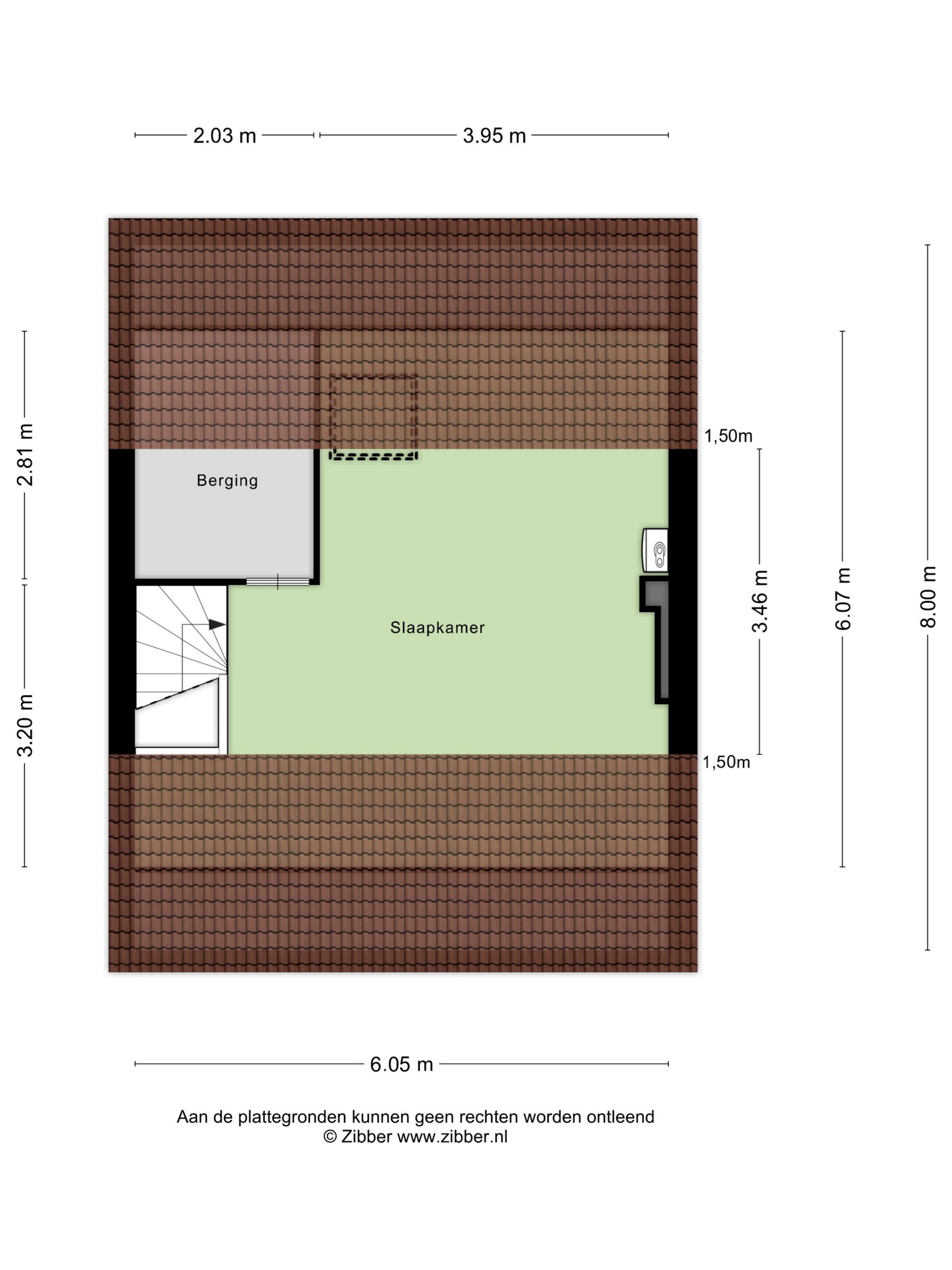
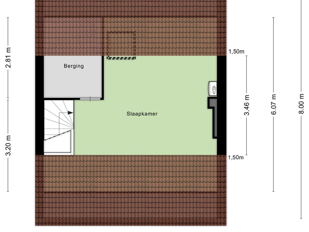
Tweede verdieping:
Een grote zolderkamer met afgesloten berg/hobbyruimte, Velux dakraam, toegang tot de opstelling cv-ketel en opbergruimte achter de knieschotten. De zolderverdieping beschikt momenteel niet over een radiator.
Tuinen:
Achtertuin, een diepe tuin voorzien van diverse groen, kunstgras en sierbestrating. Daarnaast bevat de tuin een achterom en een zonwering.
Voortuin, met parkeergelegenheid op eigen terrein en voorzien van zowel bestrating als een groenstrook. De patio is uitgerust met een buitenkraan.
Bijzonderheden:
- Cv-ketel Bosch (2009)
- Houten en kunststof kozijnen
- Dubbele beglazing (m.u.v. voordeur)
- Betonnen vloeren op begane grond en eerste verdieping
- Houten vloer op tweede verdieping
- Energielabel F
- Er is geen vragenlijst verkoop woning beschikbaar
- In de koopovereenkomst zal de asbestclausule worden opgenomen
- In de koopovereenkomst zal de ‘niet zelfbewoningsclausule’ worden opgenomen
- Bouwjaar ca. 1967
Oplevering: in overleg met verkoper, op korte termijn mogelijk.
Bij het samenstellen van deze verkoopinformatie en (plattegrond)tekeningen zijn we nauwkeurig te werk gegaan, aan onjuistheden en/of onvolkomenheden kunt u echter geen rechten ontlenen. Daarnaast aanvaardt de makelaar of zijn opdrachtgever geen aansprakelijkheid voor de in de verkoopinformatie en (plattegrond)tekeningen verstrekte informatie.
