Vivaldistraat 164, Capelle aan den IJssel
€ 515.000,- k.k.
Details
Overdracht
- Vraagprijs
- € 515.000,- k.k.
- Status
- beschikbaar
- Aanvaarding
- in overleg
Bouw
- Soort woning
- woonhuis
- Soort woonhuis
- eengezinswoning
- Type woonhuis
- tussenwoning
- Aantal woonlagen
- 4
- Kwaliteit
- normaal
- Bouwvorm
- bestaande bouw
- Bouwjaar
- 1993
- Bouwperiode
- 1991-2000
- Onderhoud binnen
- goed
- Onderhoud buiten
- goed
- Dak
- plat dak
- Voorzieningen
- mechanische ventilatie, rolluiken en buitenzonwering
Energie
- Energielabel
- B
- Verwarming
- c.v.-ketel
- Warm water
- c.v.-ketel
- C.V.-ketel
- gas gestookte combi-ketel uit 2024 van Intergas, eigendom
Oppervlakten en inhoud
- Woonoppervlakte
- 146 m²
- Perceeloppervlakte
- 77 m²
- Inhoud
- 559 m³
- Oppervlakte inpandige bergruimte
- 12 m²
Indeling
- Aantal kamers
- 5
- Aantal slaapkamers
- 4
Buitenruimte
- Ligging
- aan rustige weg, in woonwijk en vrij uitzicht
Bergruimte
- Garage
- parkeerplaats
- Schuur/berging
- inpandig
Omschrijving
Een opvallend goed verzorgde 4-laagse drive-in EENGEZINSWONING met verassend veel ruimte in het gewilde ’s-Gravenland!
Met een groot dakterras van maar liefst ca. 25 m2 op het zuiden aan de achterzijde en ook een groot balkon aan de voorzijde van de woning, kies je zelf voor de zon of verkoelende schaduw.
Deze woning beschikt over 4(!) woonlagen en is ook erg goed geschikt voor de combinatie van wonen en werken/hobby en/of dubbele bewoning.
Zie onderstaande hoofdkenmerken met nadere omschrijving en de uitgebreide fotoreportage. Zelf sfeer proeven in de woning? Bel met Kok Makelaars voor een bezichtiging!
Hoofdkenmerken:
- Slaap-/werk/-hobbykamer en grote berging (garage) op begane gro... lees
meer
Een opvallend goed verzorgde 4-laagse drive-in EENGEZINSWONING met verassend veel ruimte in het gewilde ’s-Gravenland!
Met een groot dakterras van maar liefst ca. 25 m2 op het zuiden aan de achterzijde en ook een groot balkon aan de voorzijde van de woning, kies je zelf voor de zon of verkoelende schaduw.
Deze woning beschikt over 4(!) woonlagen en is ook erg goed geschikt voor de combinatie van wonen en werken/hobby en/of dubbele bewoning.
Zie onderstaande hoofdkenmerken met nadere omschrijving en de uitgebreide fotoreportage. Zelf sfeer proeven in de woning? Bel met Kok Makelaars voor een bezichtiging!
Hoofdkenmerken:
- Slaap-/werk/-hobbykamer en grote berging (garage) op begane grond
- Royale woonkamer met moderne keuken op eerste verdieping
- Balkon aan voorzijde op het noorden (ochtend en avondzon)
- 2 (oorspronkelijk 3) ruime slaapkamers en badkamer op tweede verdieping
- Moderne badkamer met inloopdouche
- Hoofdslaapkamer met vrijstaand ligbad
- Ruime slaapkamer en dakterras (zuiden) op derde verdieping
- Overdekte (onder balkon) parkeergelegenheid op eigen terrein
- Ruime openbare parkeergelegenheid met elektra laadpalen
- Woonoppervlakte ca. 146 m²
- Perceeloppervlakte ca. 77 m²
- Eigen grond
Gelegen in de centrale en kindvriendelijke woonwijk ’s-Gravenland, nabij volop voorzieningen als overdekt winkelcentrum Puccinipassage, metrostation Capelsebrug (5 minuten lopen), scholen, kinderdagopvang, parkje met speelgelegenheid, gezondheidszorg en uitvalswegen.
INDELING (voor de afmetingen, zie de plattegrondtekeningen)
Begane grond:
De begane grond is voorzien van massief eiken vloerdelen.
Entree/hal, met toegang tot een slaap-/werk/-hobbykamer, toilet, trapkast, meterkast, berging (garage) en de trapopgang naar de eerste verdieping.
Slaap-/werk-/hobbykamer, een ruime kamer gelegen aan de achterzijde, voorzien van grote ramen en elektrische zonwering (screen).
Toilet (2022), grotendeels betegeld, voorzien van een hangend closet, een fonteintje en mechanische ventilatie.
Berging (garage), voorzien van een stalen kanteldeur, tapijttegels op de vloer en een water (buiten)kraan.
Eerste verdieping:
De eerste verdieping is voorzien van een fraaie houten vloer (gerenoveerd in 2022).
Woonkamer, een royale woonkamer, met toegang tot de open keuken en het fantastische balkon aan de voorzijde en de trapopgang naar de tweede verdieping. Aan de achterzijde is de woonkamer voorzien van een grote glazen pui met elektrisch zonwering (screen).
Keuken, gelegen aan de voorzijde van de woning voorzien van een 5-pits gaskookplaat, afzuigkap, brede oven, combimagnetron, vaatwasser, grote koelkast met vriesvak, veel kasten en lades en mechanische ventilatie. Vanuit de keuken is er toegang tot het balkon.
Balkon, een ruim en heerlijk balkon op het noorden. Met een heerlijk kopje koffie genieten van de ochtendzon, avondzon of juist de schaduw overdag in de hete zomermaanden.
Tweede verdieping:
Overloop, een ruime overloop voorzien van laminaat vloerafwerking, met toegang tot 2 slaapkamers, de badkamer en de trapopgang naar de derde verdieping.
Slaapkamer 1, een royale kamer aan de achterzijde, met een luxe ligbad met thermostaatkraan en handdouche. De vloer rondom het ligbad is afgewerkt met keramische tegels verder ligt er tapijt op de rest van de vloer en er zijn elektrische rolluiken aanwezig.
Slaapkamer 2, een mooie extra kamer aan de voorzijde, voorzien van een tapijt vloerafwerking.
Badkamer (eind 2021), geheel betegeld, voorzien van een inloopdouche met thermostaatkraan, handdouche en rainshower, een brede wastafel met 2 mengkranen, onderladen en spiegelkast met verlichting, een tweede toilet (hangend closet), badkamerradiator en mechanische ventilatie.
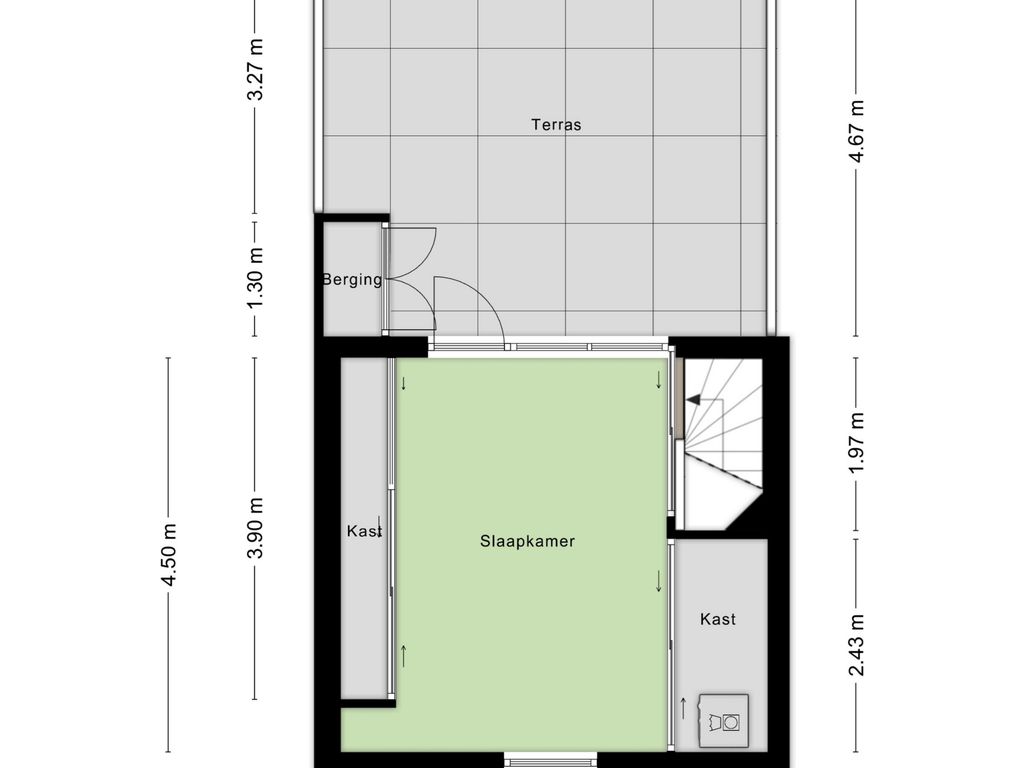
Derde verdieping:
Een royale derde verdieping, welke goed gebruikt kan worden als slaap-/hobbykamer. De ruimte is voorzien van een vinyl vloerafwerking, grote maatwerk (inbouw)kasten met schuif/spiegeldeuren en zonwering (handmatige screen). Verder is er de wasmachine- en drogeraansluiting, opstelling cv-ketel en toegang tot het dakterras.
Dakterras, een royaal terras van circa 25 m² gelegen aan de achterzijde op het zuiden. Hier is het genieten van de zon en het vrije uitzicht over de wijk en de skyline van Rotterdam!
Tuinen:
Voortuin, voorzien van bestrating en overdekte parkeergelegenheid (Carport onder het balkon).
Bijzonderheden:
- Cv-ketel Intergas (eind 2024)
- Houten kozijnen en dubbele beglazing
- Betonnen vloeren
- Energielabel B
- Bouwjaar ca. 1993
Oplevering: in overleg met verkoper.
Bij het samenstellen van deze verkoopinformatie en (plattegrond)tekeningen zijn we nauwkeurig te werk gegaan, aan onjuistheden en/of onvolkomenheden kunt u echter geen rechten ontlenen. Daarnaast aanvaardt de makelaar of zijn opdrachtgever geen aansprakelijkheid voor de in de verkoopinformatie en (plattegrond)tekeningen verstrekte informatie.
